Connect

Find us on...

Dashboard

Login using...

Justin Havre Real Estate Team

Real Estate Advisor

  • Office 403.217.0003
Questions?

54 Arbour Lake Court Northwest, Calgary, Alberta – $439,109

  • 2 Beds
  • Baths
  • 814 Sqft
  • 45 DOM
  • 2 Beds
  • Baths
  • 814 Sqft
  • 45 DOM

54 Arbour Lake Court Northwest

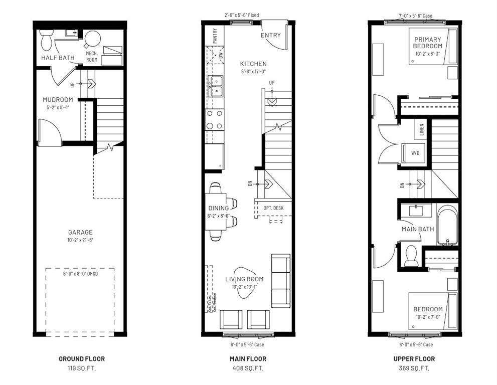
Step into this beautifully designed, newly built 3-level townhome by Cantiro—offering the perfect blend of comfort, style, and nature. Located in the sought-after lake community of Arbour Lake, this 2-bedroom, 1.5-bath home backs directly onto peaceful green space and showcases expansive triple-paned windows that flood each level with natural light. The entry level features a welcoming mudroom, a convenient two-piece bathroom, and access to the single attached garage with an oversized overhead door. On the main floor, enjoy a bright and open layout with spacious living and dining areas and a contemporary kitchen—ideal for everyday living and entertaining. Upstairs, you’ll find two bedrooms, a full four-piece bathroom, and upper-floor laundry for added convenience. With luxury vinyl plank flooring, quartz countertops, professionally curated interior finishes, and rough-ins for both air conditioning and a BBQ gas line, this home is move-in ready and waiting for your personal touch. Enjoy low-maintenance living with exclusive access to year-round lake amenities—all in a peaceful setting that backs onto green space. ( PLEASE note* photos are of similar models but there are not an exact replication of the home).

Essential Information

  • MLS® #A2261653
  • Price$439,109
  • Bedrooms2
  • Bathrooms1.5
  • Full Baths1
  • Half Baths1
  • Square Footage814
  • Year Built2026
  • TypeResidential
  • Sub-TypeRow/Townhouse
  • Style3 Storey
  • StatusActive
  • Condo Fee148
  • Condo NameZ-name Not Listed

Condo Fee Includes

Common Area Maintenance, Insurance, Maintenance Grounds, Professional Management, Snow Removal

Community Information

  • Address54 Arbour Lake Court Northwest
  • SubdivisionArbour Lake
  • CityCalgary
  • ProvinceAlberta
  • Postal CodeT3G 0H6

Amenities

  • Parking Spaces1
  • ParkingSingle Garage Attached
  • # of Garages1

Amenities

Bicycle Storage, Parking, Snow Removal, Trash, Visitor Parking

Interior

  • HeatingForced Air, Natural Gas
  • CoolingNone
  • Basement DevelopmentNone
  • Basement TypeNone
  • FlooringCarpet, Vinyl Plank

Goods Included

No Animal Home, No Smoking Home, Open Floorplan, Quartz Counters, See Remarks

Appliances

Dishwasher, Electric Stove, Microwave Hood Fan, Refrigerator

Exterior

  • Exterior FeaturesBBQ gas line, Private Entrance
  • Lot DescriptionBacks on to Park/Green Space
  • RoofAsphalt Shingle
  • FoundationPoured Concrete
  • Front ExposureNW
  • Site InfluenceBacks on to Park/Green Space

Construction

Cement Fiber Board, Mixed, Wood Frame

Additional Information

  • ZoningTBD
  • HOA Fees230
  • HOA Fees Freq.ANN

Room Dimensions

  • Dining Room6`2 x 8`6
  • Kitchen6`8 x 17`0
  • Living Room10`2 x 10`1
  • Master Bedroom10`2 x 8`3
  • Bedroom 210`2 x 7`0

Listing Details

  • OfficeKIC Realty

Schedule a Tour

Wednesday
19
Nov
Thursday
20
Nov
Friday
21
Nov
Saturday
22
Nov
Sunday
23
Nov
Monday
24
Nov
Tuesday
25
Nov
Wednesday
26
Nov
Thursday
27
Nov
Friday
28
Nov
Saturday
29
Nov
Sunday
30
Nov
Monday
1
Dec

Take a tour with a buyer's agent

Request this time
It's free, with no obligation - cancel any time.
Please provide a valid email address.

Disclaimer and Acknowledgment

I acknowledge and authorize calgaryhomes.ca and Justin Havre of eXp Realty to refer me to a suitable agent(s) in a home purchase, sale and/or mortgage approval. In such case, I also acknowledge and authorize that the referred agent(s) may pay a referral fee. (This does not constitute a formal buyers brokerage agreement nor compel me to use the referred agent(s)). My information will not be disclosed to any party in any way not associated with the Privacy Policy.

KIC Realty.

MLS listings provided by Pillar 9™. Information Deemed Reliable But Not Guaranteed. The information provided by this website is for the personal, non-commercial use of consumers and may not be used for any purpose other than to identify prospective properties consumers may be interested in purchasing.

Listing information last updated on November 18th, 2025 at 12:45am MST.

CalgaryHomes.ca