Connect

Find us on...

Dashboard

Login using...

Justin Havre Real Estate Team

Real Estate Advisor

  • Office 403.217.0003
Questions?

17 Santana Manor Northwest, Calgary, Alberta – $798,500

  • 5 Beds
  • 4 Baths
  • 2,730 Sqft
  • .16 Acres
  • 5 Beds
  • 4 Baths
  • 2,730 Sqft
  • .16 Acres

17 Santana Manor Northwest

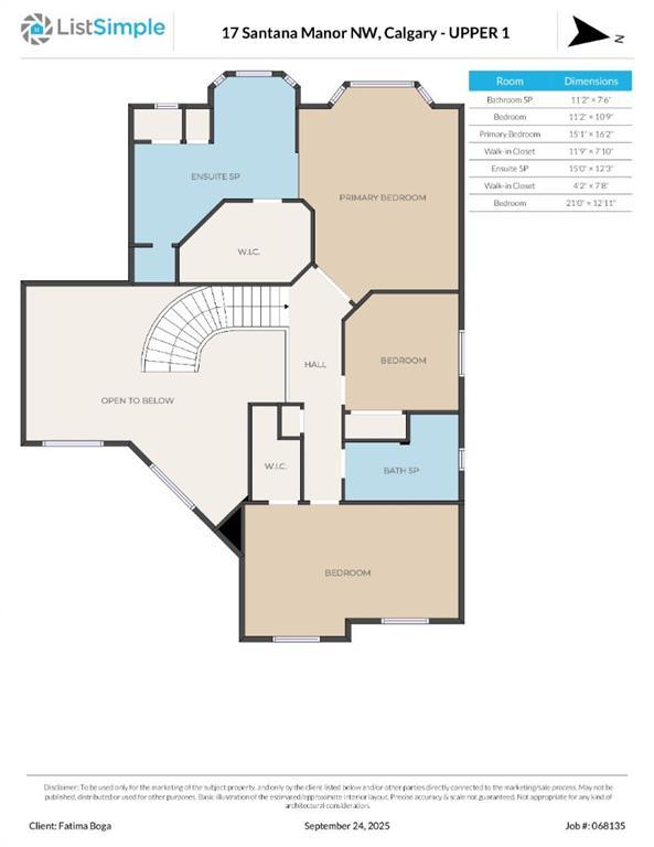
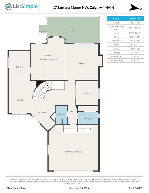
Welcome to this bright and spacious two-story split home located on a quiet cul-de-sac in Sandstone NW. Boasting over 3,800 sq. ft. of developed living space, this 2,700 sq. ft. home offers plenty of room for the whole family with 5 bedrooms, 4 full bathrooms, a den/office, and multiple living areas. A unique feature of this property is the rare walk-up basement entrance directly into the garage. Great access to all major roadways, shopping and schools. As you enter, you're greeted by a large foyer with a beautiful spiral staircase leading to the upper level. To the left of the foyer, you'll find a formal living and dining room combination with a French pocket door that opens into the heart of the home, a generous kitchen and cozy family room. The kitchen features a gas cooktop, sunshine ceiling, and ample cabinetry, while the adjacent dining nook with bay window and French doors leading to a large back deck and yard. The family room is anchored by a striking wood-burning fireplace with gas starter and offers lovely natural light. Walk back into foyer are where you will find French doors to the den/office with built-ins. This level also includes a 3-piece bathroom, laundry room, and direct access to the garage. Main floor LVP is brand new and garage door was replaced last year. Upstairs, the primary room is accessed through elegant French doors and includes space for a king-sized bed plus a sitting area in front of the bay window. The 5-piece ensuite features a soaker tub, skylight, and a large walk-in closet. Two additional bedrooms are located on this level, including one oversized room with its own walk-in closet and built-in shelving. A well-appointed 5-piece main bathroom completes the upper floor. The fully developed basement can be accessed from both the foyer and the garage — a rare and functional feature. Downstairs you'll find 2 additional bedrooms, a spacious family room, games area, wet bar, 3-piece bathroom, and plenty of storage, including a cold room and mechanical/furnace room with 2 newer furnaces.

Essential Information

  • MLS® #A2260143
  • Price$798,500
  • Bedrooms5
  • Bathrooms4
  • Full Baths4
  • Square Footage2,730
  • Lot SQFT7,147
  • Year Built1989
  • TypeResidential
  • Sub-TypeDetached
  • Style2 Storey Split
  • StatusActive

Community Information

Amenities

  • Parking Spaces5
  • ParkingDouble Garage Attached
  • # of Garages2

Interior

  • HeatingHigh Efficiency
  • CoolingNone
  • Has BasementYes
  • FireplaceYes
  • # of Fireplaces1
  • FireplacesGas, Wood Burning
  • Basement DevelopmentFull
  • Basement TypeFull
  • FlooringCarpet, Tile, Vinyl Plank

Goods Included

Built-in Features, Ceiling Fan(s), Chandelier, High Ceilings, Jetted Tub, Kitchen Island, Open Floorplan, Separate Entrance, Skylight(s), Storage, Walk-In Closet(s), Wet Bar, French Door

Appliances

Built-In Oven, Dishwasher, Dryer, Gas Cooktop, Refrigerator, Washer, Window Coverings, Double Oven, Garburator

Exterior

  • Exterior FeaturesBBQ gas line
  • RoofTile
  • ConstructionConcrete, Stucco, Other
  • FoundationPoured Concrete
  • Front ExposureNE
  • Frontage Metres16.32M 53`7"

Lot Description

Back Yard, Cul-De-Sac, Few Trees, Front Yard

Site Influence

Back Yard, Cul-De-Sac, Few Trees, Front Yard

Additional Information

  • ZoningR-CG

Room Dimensions

  • Den10`0 x 10`1
  • Dining Room13`5 x 10`2
  • Family Room14`0 x 15`10
  • Kitchen16`1 x 15`10
  • Living Room13`5 x 14`5
  • Master Bedroom15`1 x 16`2
  • Bedroom 211`2 x 10`9
  • Bedroom 310`6 x 9`5
  • Bedroom 421`0 x 12`11

Listing Details

  • OfficeCIR Realty

Schedule a Tour

Friday
14
Nov
Saturday
15
Nov
Sunday
16
Nov
Monday
17
Nov
Tuesday
18
Nov
Wednesday
19
Nov
Thursday
20
Nov
Friday
21
Nov
Saturday
22
Nov
Sunday
23
Nov
Monday
24
Nov
Tuesday
25
Nov
Wednesday
26
Nov

Take a tour with a buyer's agent

Request this time
It's free, with no obligation - cancel any time.
Please provide a valid email address.

Disclaimer and Acknowledgment

I acknowledge and authorize calgaryhomes.ca and Justin Havre of eXp Realty to refer me to a suitable agent(s) in a home purchase, sale and/or mortgage approval. In such case, I also acknowledge and authorize that the referred agent(s) may pay a referral fee. (This does not constitute a formal buyers brokerage agreement nor compel me to use the referred agent(s)). My information will not be disclosed to any party in any way not associated with the Privacy Policy.

CIR Realty.

MLS listings provided by Pillar 9™. Information Deemed Reliable But Not Guaranteed. The information provided by this website is for the personal, non-commercial use of consumers and may not be used for any purpose other than to identify prospective properties consumers may be interested in purchasing.

Listing information last updated on November 13th, 2025 at 8:15am MST.

CalgaryHomes.ca