Connect

Find us on...

Dashboard

Login using...

Justin Havre Real Estate Team

Real Estate Advisor

  • Office 403.217.0003
Questions?

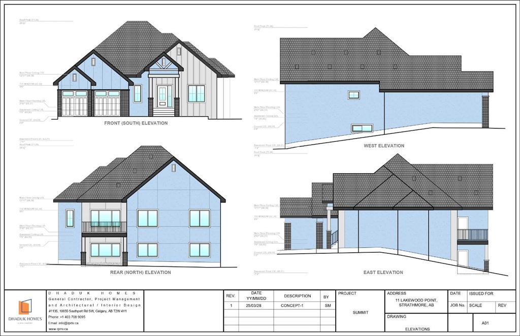
11 Lakewood Point, Strathmore, Alberta – $750,000

  • 4 Beds
  • 4 Baths
  • 1,603 Sqft
  • .18 Acres
  • 4 Beds
  • 4 Baths
  • 1,603 Sqft
  • .18 Acres

11 Lakewood Point

Welcome to 3 Lakewood Point, located in the growing Lakewood community of Strathmore and build by Dhaduk Homes. This thoughtfully designed bungalow combines functional main floor living with the flexibility of a fully finished basement. The main level offers an open-concept layout that blends the living room, dining area, and kitchen into one bright and inviting space. The kitchen is equipped with a central island, ample cabinet storage, and convenient access to the dining area, making it ideal for everyday living. The primary bedroom features a private ensuite and a walk-in closet, while a second bedroom and a full bathroom provide comfort for family members or guests. The finished basement expands the living space with a large family room, perfect for entertainment, recreation, or additional gathering space. Two well-sized bedrooms and a full bathroom offer options for extended family, a home office, or guest accommodation. Additional storage areas provide practical solutions for household organization. Outdoors, the property backs onto a storm water pond and walking path creating a natural backdrop with added privacy and a sense of openness. This property includes a double attached garage and sits on a lot that offers easy access to walking paths, community green spaces, and the planned amenities of Lakewood. Just minutes away, Strathmore provides schools, shopping, restaurants, healthcare, and other essential services, making this home well-suited for a variety of lifestyles. Book your private showing today!

Essential Information

  • MLS® #A2254248
  • Price$750,000
  • Bedrooms4
  • Bathrooms4
  • Full Baths4
  • Square Footage1,603
  • Lot SQFT7,731
  • Year Built2025
  • TypeResidential
  • Sub-TypeDetached
  • StyleBungalow
  • StatusActive

Community Information

Amenities

  • AmenitiesOther, Park, Playground
  • Parking Spaces4
  • ParkingDouble Garage Attached
  • # of Garages2

Interior

  • HeatingForced Air
  • CoolingNone
  • Has BasementYes
  • FireplaceYes
  • # of Fireplaces1
  • FireplacesElectric
  • Basement DevelopmentFinished, Full
  • Basement TypeFinished, Full
  • FlooringTile, Vinyl Plank

Goods Included

High Ceilings, Open Floorplan, Pantry, Quartz Counters, Walk-In Closet(s)

Appliances

Dishwasher, Dryer, Electric Stove, Microwave, Refrigerator, Washer

Exterior

  • Exterior FeaturesPrivate Yard
  • RoofAsphalt Shingle
  • ConstructionWood Frame
  • FoundationPoured Concrete
  • Front ExposureW
  • Frontage Metres12.34M 40`6"

Lot Description

Backs on to Park/Green Space, No Neighbours Behind, Pie Shaped Lot

Site Influence

Backs on to Park/Green Space, No Neighbours Behind, Pie Shaped Lot

Additional Information

  • ZoningR1N
  • HOA Fees300
  • HOA Fees Freq.ANN

Room Dimensions

  • Dining Room11`9 x 12`4
  • Kitchen13`9 x 14`2
  • Living Room13`9 x 17`2
  • Master Bedroom15`6 x 12`0
  • Bedroom 211`6 x 12`0
  • Bedroom 313`1 x 12`0
  • Bedroom 410`1 x 11`1

Listing Details

  • OfficeCIR Realty

Schedule a Tour

Friday
14
Nov
Saturday
15
Nov
Sunday
16
Nov
Monday
17
Nov
Tuesday
18
Nov
Wednesday
19
Nov
Thursday
20
Nov
Friday
21
Nov
Saturday
22
Nov
Sunday
23
Nov
Monday
24
Nov
Tuesday
25
Nov
Wednesday
26
Nov

Take a tour with a buyer's agent

Request this time
It's free, with no obligation - cancel any time.
Please provide a valid email address.

Disclaimer and Acknowledgment

I acknowledge and authorize calgaryhomes.ca and Justin Havre of eXp Realty to refer me to a suitable agent(s) in a home purchase, sale and/or mortgage approval. In such case, I also acknowledge and authorize that the referred agent(s) may pay a referral fee. (This does not constitute a formal buyers brokerage agreement nor compel me to use the referred agent(s)). My information will not be disclosed to any party in any way not associated with the Privacy Policy.

CIR Realty.

MLS listings provided by Pillar 9™. Information Deemed Reliable But Not Guaranteed. The information provided by this website is for the personal, non-commercial use of consumers and may not be used for any purpose other than to identify prospective properties consumers may be interested in purchasing.

Listing information last updated on November 13th, 2025 at 7:45pm MST.

CalgaryHomes.ca